咨询电话/微信同号 18858855226
网站首页
图纸案例
建成实景
别墅装修
定制设计
建房知识
当前位置:
网站首页
>
图纸案例
>
案例详情
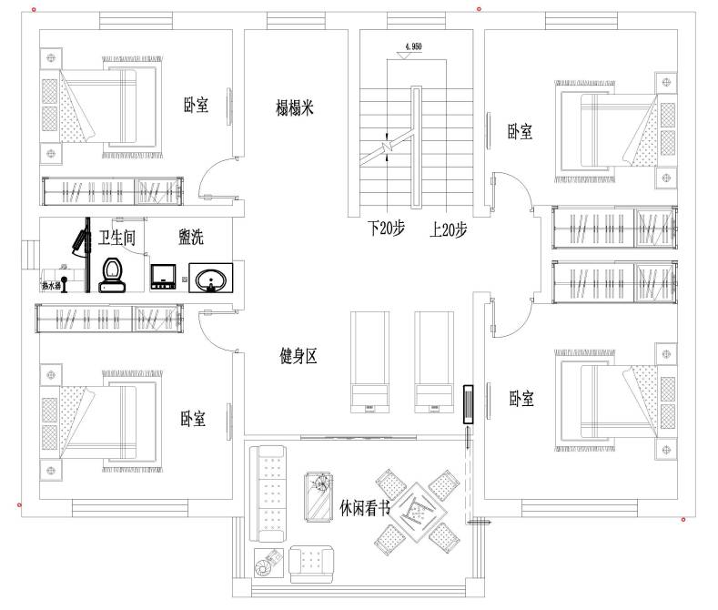
图纸编号:285
二层常规平顶自建房设计造价省图纸之家喜天下建筑设计
开间:13.5米
进深:12.2米
房屋风格:现代
成交量:
12
我要图纸
我要施工
服务承诺:国家标准设计 专业审图 注册设计师 资深团队
盖房分类
查看所有图纸
一层别墅
二层别墅
三层别墅
四层及以上
双拼别墅
架空层/商铺
建成实景
别墅装修
定制设计
最新上架
二层双拼新中式风格兄弟双拼自建房设计图纸案例喜天下建筑设计
56人已买
河北邯郸朱家欧式别墅设计喜天下别墅设计案例
66人已买
经典造型设计二层欧式自建别墅设计图纸房子设计图二层别墅设计喜天下建筑设计
177人已买
爆款新中式二层小别墅290图纸对称镜像
168人已买
四川自贡李家欧式风格别墅自建房设计图纸喜天下建筑设计
21人已买
经典欧式4层两开间农村别墅设计图纸房屋设计图纸之间刚设计图纸
5人已买
新中式风格带车库中空挑空客厅农村自建房别墅住宅设计图纸
102人已买
安徽淮南徐家新中式3层别墅设计喜天下别墅设计案例
50人已买
河北秦皇岛李家新中式风格别墅自建房设计图纸喜天下建筑设计
99人已买
三层半楼房设计图,新中式带坡屋顶带阁楼
52人已买
欧式三层别墅设计图纸农村自建房屋设计图纸房子设计图纸喜天下建筑设计
32人已买
上海崇明庞家现代风格别墅设计喜天下别墅设计图纸
99人已买
浙江嘉兴邵家欧式别墅设计喜天下别墅设计图纸
57人已买
北京顺义马家新中式风格别墅自建房设计图纸喜天下建筑设计
41人已买
辽宁抚顺邱家欧式双拼2层别墅设计喜天下别墅设计图纸
71人已买
江苏兴化苏家欧式风格别墅自建房设计图纸喜天下建筑设计
28人已买
河北承德施家欧式别墅设计案例喜天下别墅设计
112人已买
北京昌平朱家欧式风格别墅自建房设计图纸喜天下建筑设计
11人已买
江西九江周家120平米占地面积二层欧式农村自建房屋设计图纸
28人已买
四川绵阳雷家欧式风格别墅自建房设计图纸喜天下建筑设计
32人已买
福建集美胡家欧式双拼3层别墅设计喜天下别墅设计案例
77人已买
北京平谷王家欧式风格别墅自建房设计图纸喜天下建筑设计
21人已买
江西宜昌陆家欧式风格别墅自建房设计图纸喜天下建筑设计
16人已买
广东佛山陈家欧式别墅自建房设计图纸喜天下建筑设计
28人已买
上一篇:二层经典中式带院子别墅设计
下一篇:一层经典农村自建房设计图纸
看了又看
经典120平米二层乡村简欧风格小别墅全套设计图纸,新款!
湖南邵阳杨家欧式别墅自建房设计图纸喜天下建筑设计
经典中式风格三层浙江丽水白墙黑瓦自建房屋设计图纸喜天下建筑设计
安徽巢湖孔家新中式风格别墅自建房设计图纸喜天下建筑设计
贵州贵阳胡家欧式风格别墅自建房设计图纸喜天下建筑设计
浙江温州赵家欧式别墅自建房设计图纸喜天下建筑设计
一层欧式风格农村自建房外形效果图设计施工图纸
重庆万盛刘家欧式别墅设计喜天下别墅设计案例
经典户型
安徽蚌湖李家欧式别墅自建房设计图纸喜天下建筑设计
陕西安康李家中式风格别墅自建房设计图纸喜天下建筑设计
湖南邵阳艾家欧式别墅设计喜天下别墅设计案例
重庆渝北谢家新中式风格别墅自建房设计图纸喜天下建筑设计
四川成都朱家新中式风格别墅自建房设计图纸喜天下建筑设计
湖北潜江王家欧式风格别墅自建房设计图纸喜天下建筑设计
双拼湖南株洲付家两兄弟别墅设计图纸欧式模具定制设计
湖南株洲马家新中式风格别墅自建房设计图纸喜天下建筑设计
我要图纸
加设计师微信 18858855226
专业的设计团队,最实惠的价格,我们为您量身定制,专属于您的房子设计。
我要施工
加设计师微信 18858855226
专业的设计团队,最实惠的价格,我们为您量身定制,专属于您的房子设计。