咨询电话/微信同号 18858855226
网站首页
图纸案例
建成实景
别墅装修
定制设计
建房知识
当前位置:
网站首页
>
图纸案例
>
案例详情
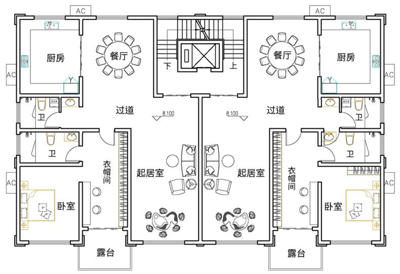
图纸编号:6756
河南商丘王家农村自建房别墅设计
开间:21.0米
进深:14.5米
房屋风格:新中式
成交量:
7
我要图纸
我要施工
服务承诺:国家标准设计 专业审图 注册设计师 资深团队
盖房分类
查看所有图纸
一层别墅
二层别墅
三层别墅
四层及以上
双拼别墅
架空层/商铺
建成实景
别墅装修
定制设计
最新上架
江西上饶黄家三层欧式农村自建房设计图纸,带复式客厅设计
66人已买
江苏扬州白家欧式别墅设计喜天下别墅设计案例
88人已买
三层两层半新中式风格对称双拼自建房屋设计案例
78人已买
北京顺义张家一层中式合院别墅设计图
11人已买
海南乐东林家三层带商铺现代风格农村别墅造型案例效果图大全
32人已买
广东东莞李家别墅自建房屋设计喜天下建筑设计
12人已买
浙江杭州赵家欧式别墅设计喜天下别墅设计案例
95人已买
浙江杭州华家欧式别墅
38人已买
河北衡水刘家现代风格别墅自建房设计图纸喜天下建筑设计
12人已买
湖南益阳吴家中式风格别墅自建房设计图纸喜天下建筑设计
39人已买
辽宁抚顺龙家新中式2层别墅设计喜天下别墅设计案例
50人已买
广西南宁王家现代风格别墅自建房设计图纸喜天下建筑设计
26人已买
兄弟双拼三拼联排别墅设计案例别墅造型设计施工图纸喜天下易盖房喜盖房建房说
11人已买
辽宁锦州俞家现代风格别墅设计喜天下别墅设计案例
39人已买
广西南平粟家别墅设计喜天下别墅设计案例
66人已买
经典造型设计二层欧式自建别墅设计图纸房子设计图二层别墅设计喜天下建筑设计
177人已买
湖北孝感赵家欧式别墅自建房设计图纸喜天下建筑设计
40人已买
大气最新款新中式三层别墅设计双拼案例
77人已买
河北沧州林家新中式别墅设计喜天下别墅设计图纸
179人已买
三层欧式豪华自建别墅设计全套建筑设计施工图纸
56人已买
云南普洱贾家欧式风格别墅自建房设计图纸喜天下建筑设计
33人已买
浙江义乌余家欧式双拼别墅自建房设计图纸喜天下建筑设计
22人已买
河北张家口徐家欧式高层别墅设计喜天下别墅设计图纸
29人已买
山西晋城古家新中式别墅设计喜天下别墅设计图纸
55人已买
上一篇:江西景德镇三层欧式别墅
下一篇:现代风格平屋顶真石漆干挂石材住宅民宿设计案例
看了又看
河北康保邱家中式1层 别墅设计喜天下别墅设计案例
三层农村欧式自建房小别墅设计图纸带阳台和大露台建房说住宅公园
广西贵港赵家欧式别墅设计喜天下别墅设计案例
湖南永州高家欧式双拼别墅设计喜天下别墅设计案例
大气欧式带堂屋旋转楼梯兄弟双拼别墅自建房设计联排别墅
湖南岳阳汪家现代风格别墅自建房设计图纸喜天下建筑设计
2021爆款经典新中式风格二层小别墅设计图纸施工图
江西赣州杨家中式风格别墅自建房设计图纸喜天下建筑设计
经典户型
海南文昌舒家现代风格别墅设计喜天下别墅设计案例
重庆合川欧式风格别墅自建房设计图纸喜天下建筑设计
湖南常德潘家现代风格别墅自建房设计图纸喜天下建筑设计
二层半新中式带阳光房爆款自建房小别墅设计喜天下建筑设计
江西上饶熊家新中式风格别墅自建房设计图纸喜天下建筑设计
广东河源宋家中式风格别墅自建房设计图纸喜天下建筑设计
山西阳泉张家欧式6层别墅设计喜天下别墅设计图纸
云南曲靖伏家欧式别墅自建房设计图纸喜天下建筑设计
我要图纸
加设计师微信 18858855226
专业的设计团队,最实惠的价格,我们为您量身定制,专属于您的房子设计。
我要施工
加设计师微信 18858855226
专业的设计团队,最实惠的价格,我们为您量身定制,专属于您的房子设计。