项目概况

△总平面示意图
项目位于浙江丽水,现场风景怡人,宅基地西边侧靠山有水,东、南两侧与道路相邻,北侧目前为空地。业主家的宅基地拥有600㎡的开阔面积,在设计师的建议下,业主最终从图纸修改改为了定制设计委托。
业主在项目前期沟通过程中提出了一些简单的平面布置需求,希望一层的公共空间(餐厅、客厅等)面积尽量宽阔,希望每间卧室都能配备阳台。设计师根据业主提出的要求和喜好,将项目设计风格确定为欧式。
图纸设计

△一层平面图
设计师应业主需求,将一层大部分空间均设计为公共活动空间,餐厅、客厅的面积非常充足,同时搭配茶室增加一层的餐饮功能。厨房后门的设计既使使用的便捷性得以提升,同时也更符合当地的生活习惯。

△二层平面图
二层全部空间均用于日常起居,豪华主卧搭配两间次卧,每间卧室在设计上均有不同侧重。主卧大面积的衣帽间、私卫和书房套间设计使得主卧的功能非常丰富且实用;西北侧次卧的阳台提供了休闲观景空间;东南侧卧室的私卫设计则尽可能提升了便捷度,方便老人居住。东北侧的书房拥有大量收纳空间,平时则主要用于家里孩子的日常学习和活动。

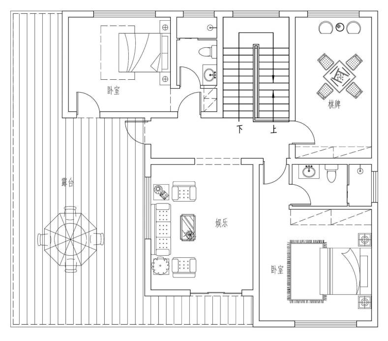
△三层平面图
三层功能定位更偏向于娱乐活动,棋牌室和娱乐间大大丰富了建筑的活动功能,大面积露台设计则可以在平时晒晒太阳,观赏周边的秀美风景;聚会时则能用于烧烤和餐饮。在配备丰富活动空间的同时,设计师在三层还设计了两间独立客卧,用于满足平时接待亲朋好友的需要。
造型设计

△人视图
项目整体为欧式风格,色调淡雅但偏暖,由于整体色彩运用相对单一,因此设计师在立面上通过较多横向线条增强了视觉冲击力。

△人视图
庭院的外墙采用通透的栅栏设计,栅栏色调与围墙形成视觉对比,迎合欧式风格主题的同时,也使得庭院与村内环境有更好的连接与沟通。

△鸟瞰图
庭院布局相对简单、清晰,西侧的水景丰富了角落处的景观。平日里在庭院中晒晒太阳喝喝茶,生活的烦恼和浮躁便会随着清风消散得无影无踪。

△鸟瞰图
设计师将整体造型设计得错落有致,通过一层外延门厅、二层观景阳台以及三层的露台突出了立面的层次感。
材质方面,设计师采用真石漆控制外装饰成本,节省造价预算。相对简单的装饰方式,也让整体风格更具清新感,这样不同于传统繁杂的欧式装饰形式,也给建筑带来了更为纯粹的生活质感。

△东立面图

△西立面图

△南立面图

△北立面图
