咨询电话/微信同号 18858855226
网站首页
图纸案例
建成实景
别墅装修
定制设计
建房知识
当前位置:
网站首页
>
图纸案例
>
案例详情
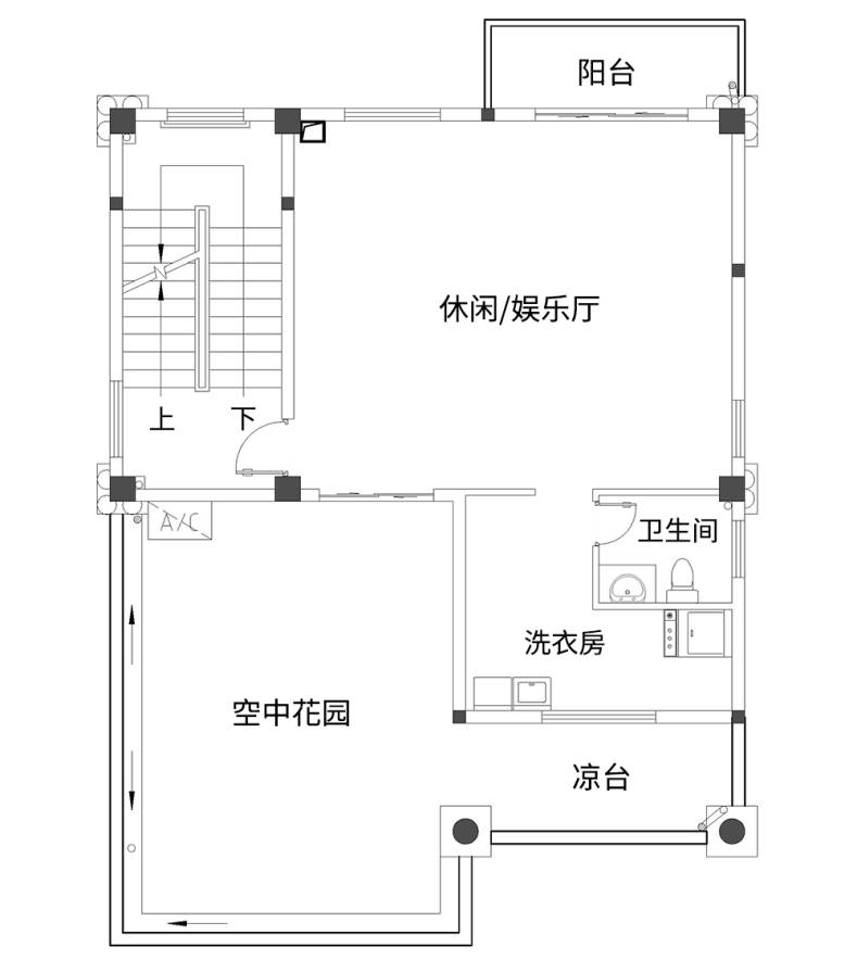
图纸编号:436
带车库一层架空层四层欧式经典两开间别墅设计图纸
开间:10米
进深:15.5米
房屋风格:欧式
成交量:
32
我要图纸
我要施工
服务承诺:国家标准设计 专业审图 注册设计师 资深团队
盖房分类
查看所有图纸
一层别墅
二层别墅
三层别墅
四层及以上
双拼别墅
架空层/商铺
建成实景
别墅装修
定制设计
最新上架
四川南充陈家欧式风格别墅自建房设计图纸喜天下建筑设计
12人已买
经典欧式农村自建房小别墅设计图纸案例图纸之家易盖房建房说设计喜天下建筑设计
28人已买
农村自建房设计图纸 二层新中式风格复式施工图纸 别墅设计
138人已买
2020年最新农村二层中式风格别墅设计效果图纸
7人已买
四川南部陈总兄弟双拼自建房别墅带露台设计
12人已买
重庆忠县李家欧式风格别墅自建房设计图纸喜天下建筑设计
105人已买
河北尚义刘家新中式3层别墅设计喜天下别墅设计图纸
115人已买
河南安阳王家中式双拼3层别墅设计喜天下别墅设计案例
35人已买
河南焦作赵家欧式别墅自建房设计图纸喜天下建筑设计
90人已买
广东河源朱家新中式风格别墅自建房设计图纸喜天下建筑设计
50人已买
江西上饶陈家新中式双拼3层别墅设计喜天下别墅设计案例
88人已买
新农村欧式四层别墅设计图喜天下建筑设计
56人已买
河南郑州董家中式别墅
21人已买
河南周口李家新中式别墅
97人已买
江西南昌范家中式风格别墅自建房设计图纸喜天下建筑设计
25人已买
福建莆田周家欧式风格别墅自建房设计图纸喜天下建筑设计
20人已买
云南宣威赵家中式别墅自建房设计图纸喜天下建筑设计
19人已买
上海嘉定钱家欧式双拼别墅设计喜天下别墅设计案例
169人已买
山西大同冯家欧式双拼3层别墅设计喜天下别墅设计图纸
59人已买
广东河源八层酒店民宿住宿宴会厅设计图纸
2人已买
江西赣州杨家中式风格别墅自建房设计图纸喜天下建筑设计
7人已买
安徽铜陵牛家欧式3层别墅设计喜天下别墅设计案例
59人已买
湖南衡阳肖家新中式风格别墅自建房设计图纸喜天下建筑设计
20人已买
北京房山曹家新中式风格别墅自建房设计图纸喜天下建筑设计
10人已买
上一篇:四川巴中通江向家自建房别墅设计图纸
下一篇:江西萍乡张家新中式风格别墅自建房设计图纸喜天下建筑设计
看了又看
浙江台州陈家别墅自建房屋设计图纸
湖南邵阳王家新中式3层别墅设计喜天下别墅设计案例
永州宁远何家新中式风格别墅自建房设计图纸喜天下建筑设计
欧式双拼大气兄弟双开自建房设计图纸案例风格喜天下建筑设计
安徽黄山石家欧式别墅设计喜天下别墅设计图纸
新中式风格经典自建房图纸别墅外观招标设计效果图建筑施工图纸设计
云南昭通唐家现代双拼别墅
湖北黄石李家欧式风格别墅自建房设计图纸喜天下建筑设计
经典户型
山东济南周家欧式别墅自建房设计图纸喜天下建筑设计
欧式双拼自建房带大露台湖南邵阳李总自建房屋设计案例图纸
五层农村自建房设计图纸农村自建别墅六层别墅图片施工图纸
广东化州吴家欧式风格别墅自建房设计图纸喜天下建筑设计
湖南常德李家欧式风格别墅自建房设计图纸喜天下建筑设计
浙江温州沈家欧式风格别墅自建房设计图纸喜天下建筑设计
浙江丽水徐家新中式别墅设计占地380平方米喜天下别墅设计
云南曲靖黄家欧式别墅自建房设计图纸喜天下建筑设计
我要图纸
加设计师微信 18858855226
专业的设计团队,最实惠的价格,我们为您量身定制,专属于您的房子设计。
我要施工
加设计师微信 18858855226
专业的设计团队,最实惠的价格,我们为您量身定制,专属于您的房子设计。