咨询电话/微信同号 18858855226
网站首页
图纸案例
建成实景
别墅装修
定制设计
建房知识
当前位置:
网站首页
>
图纸案例
>
案例详情
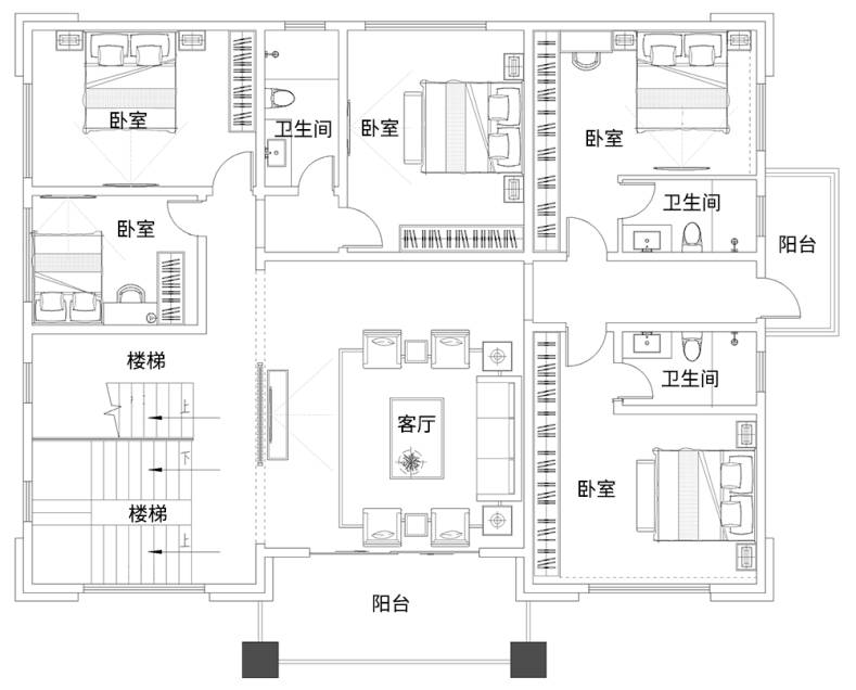
图纸编号:672
2020年新款三层半四层带大露台对称中式风格农村自建房屋设计图纸喜天下建筑设计图纸之家安筑
开间:16.4米
进深:12.6米
房屋风格:新中式
成交量:
52
我要图纸
我要施工
服务承诺:国家标准设计 专业审图 注册设计师 资深团队
盖房分类
查看所有图纸
一层别墅
二层别墅
三层别墅
四层及以上
双拼别墅
架空层/商铺
建成实景
别墅装修
定制设计
最新上架
河北沽源黄家欧式别墅设计喜天下别墅设计图纸
156人已买
四川巴中毛家欧式风格别墅自建房设计图纸喜天下建筑设计
35人已买
欧式风格小开间长进深140平方米占地面积模具罗马柱
33人已买
山东济南周家欧式别墅自建房设计图纸喜天下建筑设计
67人已买
农村托斯卡特风格别墅文化石外墙自建房屋设计案例
21人已买
北京丰台陈家欧式4层别墅设计喜天下别墅设计图纸
87人已买
江西宜昌陆家欧式风格别墅自建房设计图纸喜天下建筑设计
16人已买
安徽安庆陈家现代办公别墅设计喜天下别墅设计图纸
16人已买
260平米78万造价农村欧式带阳台大露台实用自建房屋设计
68人已买
湖南湘西孔家中式风格别墅自建房设计图纸喜天下建筑设计
77人已买
浙江温州林家新中式风格别墅自建房设计图纸喜天下建筑设计
67人已买
江苏无锡贺家欧式别墅设计喜天下别墅设计图纸
77人已买
浙江丽水徐家新中式别墅设计占地380平方米喜天下别墅设计
67人已买
广西柳州王家欧式双拼2层别墅设计喜天下别墅设计案例
59人已买
湖南浏阳文家欧式别墅自建房屋图纸之家喜天下建筑设计
33人已买
广东茂名李家新中式风格别墅自建房设计图纸喜天下建筑设计
33人已买
二层农村简欧别墅设计图纸,一层半新农村带露台别墅
51人已买
安徽六安曾家新中式风格别墅自建房设计图纸喜天下建筑设计
11人已买
福建双峰邓家新中式风格别墅自建房设计图纸喜天下建筑设计
52人已买
广东阳江钱家欧式别墅自建房设计图纸喜天下建筑设计
30人已买
湖南岳阳汪家现代风格别墅自建房设计图纸喜天下建筑设计
2人已买
湖南株洲张家中式风格别墅自建房设计图纸喜天下建筑设计
6人已买
浙江衢州隆家欧式别墅设计喜天下别墅设计案例
58人已买
二层新中式双拼兄弟一起盖共墙自建房屋设计图纸案例施工图喜天下建筑设计
56人已买
上一篇:经典欧式农村自建房小别墅设计图纸案例图纸之家易盖房建房说设计喜天下建筑设计
下一篇:经典爆款新中式二层小别墅设计案例图纸自建房屋房子设计图纸喜天下建筑
看了又看
山东泰安郑家欧式别墅自建房设计图纸喜天下建筑设计
经典中式风格三层浙江丽水白墙黑瓦自建房屋设计图纸喜天下建筑设计
新中式风格带车库中空挑空客厅农村自建房别墅住宅设计图纸
四川唐总中式风格别墅自建房设计图纸喜天下建筑设计
四川遂宁黄家中式风格别墅自建房设计图纸喜天下建筑设计
安徽安庆程家现代风格别墅自建房设计图纸喜天下建筑设计
福建泉州邵家新中式3层别墅设计喜天下别墅设计案例
山东济宁王家中式风格别墅自建房设计图纸喜天下建筑设计
经典户型
中式经典2层半安徽地区小别墅设计图纸案例喜天下建筑设计有限公司
新中式带围墙设计二层半阳光房定制设计案例喜天下喜盖房设计
湖北孝感赵家欧式别墅自建房设计图纸喜天下建筑设计
重庆渝北谢家新中式风格别墅自建房设计图纸喜天下建筑设计
山西太原华家欧式豪华双拼自建房占地280平喜天下别墅设计图纸
广东化州吴家欧式风格别墅自建房设计图纸喜天下建筑设计
陕西西安杨家欧式风格别墅自建房设计图纸喜天下建筑设计
安徽巢湖胡家新中式风格别墅自建房设计图纸喜天下建筑设计
我要图纸
加设计师微信 18858855226
专业的设计团队,最实惠的价格,我们为您量身定制,专属于您的房子设计。
我要施工
加设计师微信 18858855226
专业的设计团队,最实惠的价格,我们为您量身定制,专属于您的房子设计。