咨询电话/微信同号 18858855226
网站首页
图纸案例
建成实景
别墅装修
定制设计
建房知识
当前位置:
网站首页
>
图纸案例
>
案例详情
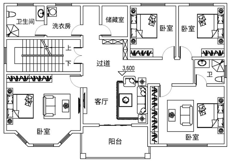
图纸编号:6354
福建集美胡家欧式双拼3层别墅设计喜天下别墅设计案例
开间:16.4米
进深:10.5米
房屋风格:欧式
成交量:
77
我要图纸
我要施工
服务承诺:国家标准设计 专业审图 注册设计师 资深团队
盖房分类
查看所有图纸
一层别墅
二层别墅
三层别墅
四层及以上
双拼别墅
架空层/商铺
建成实景
别墅装修
定制设计
最新上架
浙江湖州张家欧式风格别墅自建房设计图纸喜天下建筑设计
55人已买
湖北武汉李家欧式风格别墅自建房设计图纸喜天下建筑设计
21人已买
江苏常州曹家新中式式风格别墅自建房设计图纸喜天下建筑设计
120人已买
重庆武隆黄家欧式双拼3层别墅设计喜天下别墅设计图纸
83人已买
二层带大露台乡村自建房屋设计图纸房子设计小洋房设计
35人已买
中式风格徽派建筑二层经典设计高端私人订制效果平面图纸
10人已买
安徽六安自建房设计图纸喜天下建筑设计
66人已买
经典受欢迎三层新中式风格别墅设计
32人已买
湖北孝感赵家欧式别墅自建房设计图纸喜天下建筑设计
40人已买
湖南湘阴刘家欧式风格别墅自建房设计图纸喜天下建筑设计
21人已买
农村二层房屋设计图纸农村二层县别墅设计图喜天下建筑设计
21人已买
海南乐东赵家现代风格别墅自建房设计图纸喜天下建筑设计
38人已买
湖北宜昌万家新中式3层别墅设计喜天下别墅设计图纸
43人已买
广东广州权家欧式双拼别墅设计喜天下别墅设计案例
91人已买
北京顺义王家欧式自宅
18人已买
湖南张家界熊家新中式风格别墅自建房设计图纸喜天下建筑设计
90人已买
广东茂名李家新中式风格别墅自建房设计图纸喜天下建筑设计
33人已买
湖北宜昌王家欧式别墅自建房设计图纸喜天下建筑设计
66人已买
湖北荆州金家欧式风格别墅自建房设计图纸喜天下建筑设计
7人已买
经典欧式风格坡屋顶带阳台小别墅自建房设计喜天下建筑设计
40人已买
四川广安杨家新中式风格别墅自建房设计图纸喜天下建筑设计
52人已买
甘肃白银梁家欧式别墅自建房设计图纸喜天下建筑设计
78人已买
湖南长沙刘家新中式别墅设计
32人已买
广西柳州王家欧式双拼2层别墅设计喜天下别墅设计案例
59人已买
上一篇:江西赣州王家欧式3层别墅设计喜天下别墅设计案例
下一篇:安徽安庆徐家欧式6层别墅设计喜天下别墅设计案例
看了又看
福建建宁夏家现代风2层别墅设计喜天下别墅设计图纸
广东河源朱家新中式风格别墅自建房设计图纸喜天下建筑设计
江西上饶陈家新中式双拼3层别墅设计喜天下别墅设计案例
中式三合院四合院风格带天井多房间造价低广东惠州客户设计
山东历下胡家欧式时尚双拼别墅设计喜天下设计案例
湖南娄底王家欧式风格14开间两层经典农村自建房别墅图纸造型设计
三层欧式风格农村自建房别墅设计图纸施工图纸
浙江温州陆家别墅自建房设计图纸喜天下建筑设计
经典户型
湖北潜江王家欧式风格别墅自建房设计图纸喜天下建筑设计
美式风格二层经典风格设计别墅外观造型图纸设计施工图纸
中式三合院湖南省衡阳市带柴堂屋别墅施工图纸全套
福建莆田倪家现代风格别墅设计喜天下别墅设计案例
山西阳泉张家欧式6层别墅设计喜天下别墅设计图纸
二层欧式豪华农村复式别墅设计图及效果图纸
山东烟台顾家中式别墅设计喜天下别墅设计案例
四川南充田家欧式风格别墅自建房设计图纸喜天下建筑设计
我要图纸
加设计师微信 18858855226
专业的设计团队,最实惠的价格,我们为您量身定制,专属于您的房子设计。
我要施工
加设计师微信 18858855226
专业的设计团队,最实惠的价格,我们为您量身定制,专属于您的房子设计。