项目概况

△基地范围示意图
项目位于浙江,基地东、西两侧都有道路,南侧邻居家住宅与基地之间存在2米左右人行通道,北侧是村内主路,同时北侧有个较大的池塘,景观面较好。
业主个人比较喜欢简约的建筑,因此建筑最终设计为现代风格。

△总平面示意图
图纸设计

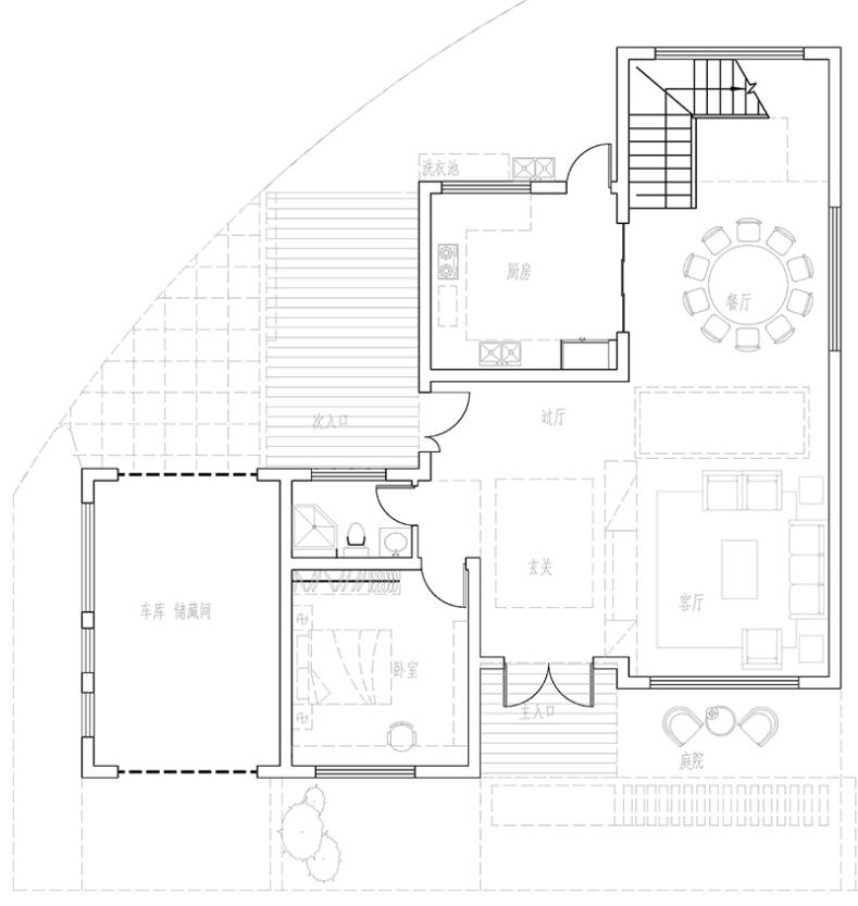
△一层平面图
平面根据地势进行设计,南侧是建筑主向,但考虑到北侧道路为村内行车主路,一层采取双门入户,主入口正对玄关,次入口正对过厅,两个入口空间均有极好过渡。
东侧客厅和餐厅十分开阔,餐厅空间可随用餐人数进行调整,较大面积使得整体感觉十分大气。老人房位于南侧,与卫生间相邻,便利的位置让老人生活更加舒适。车库位于西南角,两侧开门的形式增加了各种可能性,较大面积使得车库也能作为储藏间。

△二层平面图
平层设计赋予空间大气感,一层和二层通过独立楼梯相连,二层作为起居区域,起居室与楼梯间紧邻。由于北侧池塘景色很好,因此二层在北侧设计多处室外空间供业主及其家人观景使用。
三间卧室位于南侧,西南角主卧带有独立卫生间和开敞式衣帽间,两侧阳台使得主卧室内南北通透,居住环境更佳。儿童活动室在不同阶段可随之调整功能,当需要时,此处空间可改造为书房。

△三层平面图
三层与二层布局基本一致,儿童活动室修改为客房,室内采用榻榻米形式布置,使得有限空间可同时容纳多人住宿。起居室设计有转角窗,不仅让公共区域得到充足光照,也使得空间成为极好观景地点。

△四层平面图
四层主要提供娱乐休闲功能,东侧影音室和健身房丰富室内功能,顶层设计让娱乐活动对起居空间影响较小。西侧大面积露台可弥补庭院过小的缺憾,作为顶层平台,露台处可享受更好景色。
造型设计

△鸟瞰图
建筑整体为现代风格,立面采用品味高调的黑白灰作为主色调,以简约塑造经典。干净的颜色与利落的线条搭配,让建筑时尚感顿生。立面装饰较少,整体层次感通过空间变化进行展现。

△南侧效果图
南北两侧造型迥异,南侧以黑为主,局部使用白色提亮。空间内凹配合不同几何的窗户形状将立面质感展露。白色立面为主卧空间,贯通木格栅将二、三层连通,亮点自然突出。

△北侧效果图
北侧以白色为主,楼梯间选用贯通玻璃配合高度变化引入不同景色。起居室转角窗将整层空间虚化,横向、竖向对比使得简约造型在视觉上更具感染力。

△南侧效果图

△东立面图

△西立面图

△南立面图

△北立面图
