咨询电话/微信同号 18858855226
网站首页
图纸案例
建成实景
别墅装修
定制设计
建房知识
当前位置:
网站首页
>
图纸案例
>
案例详情
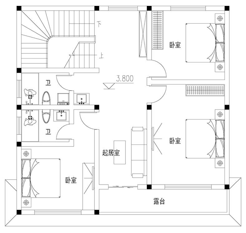
图纸编号:6115
江苏玄武秦家新中式别墅设计图纸喜天下别墅设计案例
开间:10.7米
进深:10.5米
房屋风格:新中式
成交量:
55
我要图纸
我要施工
服务承诺:国家标准设计 专业审图 注册设计师 资深团队
盖房分类
查看所有图纸
一层别墅
二层别墅
三层别墅
四层及以上
双拼别墅
架空层/商铺
建成实景
别墅装修
定制设计
最新上架
超级实用小户型100㎡以内二层欧式别墅设计
79人已买
上海金山邬家欧式别墅自建房设计图纸喜天下建筑设计
23人已买
湖南益阳王家中式风格别墅自建房设计图纸喜天下建筑设计
2人已买
重庆巫山徐家二层欧式带车库农村建筑别墅设计图纸
22人已买
河南焦作杨家欧式别墅自建房设计图纸喜天下建筑设计
35人已买
一层全套欧式风别墅设计图及效果图纸
33人已买
江西吉安高家欧式风格别墅自建房设计图纸喜天下建筑设计
55人已买
浙江湖州曹家欧式风格别墅自建房设计图纸喜天下建筑设计
28人已买
二层带地下室农村小别墅设计图纸自建房屋设计图纸喜盖房喜天下建筑设计
10人已买
浙江金华章家欧式别墅自建房设计图纸喜天下建筑设计
60人已买
广西二层新中式别墅喜天下建筑设计别墅图纸
21人已买
河南许昌王家欧式别墅设计喜天下别墅设计案例
27人已买
北京房山曹家新中式风格别墅自建房设计图纸喜天下建筑设计
10人已买
经典爆款新中式二层小别墅设计案例图纸自建房屋房子设计图纸喜天下建筑
98人已买
贵州贵阳胡家欧式风格别墅自建房设计图纸喜天下建筑设计
70人已买
农村自建房设计图纸3层别墅农村3层小别墅设计图纸喜天下建筑设计有限公司
30人已买
一层半坡屋顶中式自建别墅设计图纸大全
11人已买
陕西西安王家中式风格别墅自建房设计图纸喜天下建筑设计
18人已买
安徽六安自建房设计图纸喜天下建筑设计
66人已买
河南襄城刘家双客厅大露台带KTV自建房设计图纸施工设计欧式模具EPS构建
77人已买
广东广州云家欧式风格别墅自建房设计图纸喜天下建筑设计
32人已买
经典一层农村别墅自建房屋设计图纸及效果图大全喜天下建筑设计
168人已买
面宽12米二层精致欧式风格别墅风格造型设计浙江喜天下建筑设计有限公司
21人已买
图纸编号672镜像新中式广东佛山地区自建房屋设计
67人已买
上一篇:山东历下胡家欧式时尚双拼别墅设计喜天下设计案例
下一篇:江苏苏州陈家欧式别墅设计喜天下别墅设计案例占地140平豪华别墅
看了又看
安徽六安王家欧式风格别墅自建房设计图纸喜天下建筑设计
北京平谷王家欧式风格别墅自建房设计图纸喜天下建筑设计
江苏常州曹家新中式式风格别墅自建房设计图纸喜天下建筑设计
山东菏泽刘家新中式别墅
江苏高邮葛家新中式风格别墅自建房设计图纸喜天下建筑设计
江苏镇江冯家现代风格别墅设计喜天下别墅设计案例
广东河源八层酒店民宿住宿宴会厅设计图纸
三层带车库旋转楼梯大露台欧式经典农村别墅造型设计案例
经典户型
广州江门卢家新中式风格别墅自建房设计图纸喜天下建筑设计
安徽濉溪金家欧式别墅设计喜天下别墅设计案例
欧式二层高端别墅设计图纸,农村自建房屋图纸设计喜天下建筑设计
湖北潜江王家欧式风格别墅自建房设计图纸喜天下建筑设计
经典造型农村小自建房屋房子设计图纸建成实景施工案例
福建福州林家新中式双拼别墅自建房设计图纸喜天下建筑设计
四层新中式带庭院外厨房带土炕别墅设计施工图纸及效果图全套
江西萍乡黄家欧式别墅自建房设计图纸喜天下建筑设计
我要图纸
加设计师微信 18858855226
专业的设计团队,最实惠的价格,我们为您量身定制,专属于您的房子设计。
我要施工
加设计师微信 18858855226
专业的设计团队,最实惠的价格,我们为您量身定制,专属于您的房子设计。