咨询电话/微信同号 18858855226
网站首页
图纸案例
建成实景
别墅装修
定制设计
建房知识
当前位置:
网站首页
>
图纸案例
>
案例详情
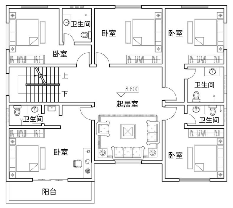
图纸编号:6440
安徽淮南何家欧式别墅自建房设计图纸喜天下建筑设计
开间:15米
进深:12米
房屋风格:欧式
成交量:
56
我要图纸
我要施工
服务承诺:国家标准设计 专业审图 注册设计师 资深团队
盖房分类
查看所有图纸
一层别墅
二层别墅
三层别墅
四层及以上
双拼别墅
架空层/商铺
建成实景
别墅装修
定制设计
最新上架
浙江杭州赵家欧式别墅设计喜天下别墅设计案例
95人已买
江西进贤付家经典造型法式高端自建别墅房屋设计图纸图片案例
17人已买
浙江台州陈家别墅自建房屋设计图纸
4人已买
浙江温州黄家新中式风格别墅自建房设计图纸喜天下建筑设计
66人已买
二层带大露台乡村自建房屋设计图纸房子设计小洋房设计
35人已买
广东深圳曹家新中式3层别墅设计喜天下别墅设计图纸
89人已买
湖北省襄阳市刘总一层三合院中式风格350平占地面积别墅设计案例
2人已买
河南开封包家中式别墅设计喜天下别墅设计案例
63人已买
经典欧式农村自建房小别墅设计图纸案例图纸之家易盖房建房说设计喜天下建筑设计
28人已买
四川南充陈家欧式风格别墅自建房设计图纸喜天下建筑设计
12人已买
广东河源八层酒店民宿住宿宴会厅设计图纸
2人已买
广东湛江陶家中式风格别墅自建房设计图纸喜天下建筑设计
29人已买
吉林松原钱家新中式3层别墅设计喜天下别墅设计案例
95人已买
山东枣庄罗家中式风格别墅自建房设计图纸喜天下建筑设计
60人已买
重庆潼南郑家中式别墅设计喜天下别墅设计图纸
59人已买
广东汕头冯家欧式别墅自建房设计图纸喜天下建筑设计
60人已买
江西新余王家欧式4层别墅设计喜天下别墅设计案例
67人已买
湖南祁东周家欧式风格别墅自建房设计图纸喜天下建筑设计
77人已买
山东平阴华家新中式3层带地下室别墅设计喜天下别墅设计案例
25人已买
经典人气欧式带挑空客厅玄关120平米面积11米开间10米进深经典户型自建小别墅设计
150人已买
浙江台州郑家欧式5层别墅设计喜天下别墅设计案例
37人已买
河南漯河张家欧式风格别墅自建房设计图纸喜天下建筑设计
168人已买
法式高级双拼兄弟二人自建四层住宅设计图纸之家案例喜天下建筑设计安筑
26人已买
湖北宜昌万家新中式3层别墅设计喜天下别墅设计图纸
43人已买
上一篇:江西景德镇高家欧式别墅自建房设计图纸喜天下建筑设计
下一篇:浙江杭州钱家欧式别墅自建房设计图纸喜天下建筑设计
看了又看
河北秦皇岛李家新中式风格别墅自建房设计图纸喜天下建筑设计
福建建宁夏家现代风2层别墅设计喜天下别墅设计图纸
湖南株洲何家欧式大面宽占地面积300平方米欧式挑空客厅大露台别墅设计
安徽阜阳王家现代双拼风格别墅自建房设计图纸喜天下建筑设计
河南周口罗家欧式风格别墅自建房设计图纸喜天下建筑设计
欧式三层高档别墅设计图纸
四川德阳姜家新中式风格别墅自建房设计图纸喜天下建筑设计
现代风格高档农村外形造型别墅图纸设计说明
经典户型
新中式风格三层带车库别墅设计130平方米占地面积建筑面积320平方米喜天下建筑
广东东莞李家别墅自建房屋设计喜天下建筑设计
北京顺义闻家现代风格别墅自建房设计图纸喜天下建筑设计
江苏南京刘家欧式3层别墅设计喜天下别墅设计图纸
江苏如皋杨家欧式风格别墅自建房设计图纸喜天下建筑设计
福建福州蒋家别墅设计喜天下别墅设计图纸
江西吉安闵家新中式别墅设计喜天下别墅设计图纸
浙江义乌余家欧式双拼别墅自建房设计图纸喜天下建筑设计
我要图纸
加设计师微信 18858855226
专业的设计团队,最实惠的价格,我们为您量身定制,专属于您的房子设计。
我要施工
加设计师微信 18858855226
专业的设计团队,最实惠的价格,我们为您量身定制,专属于您的房子设计。