咨询电话/微信同号 18858855226
网站首页
图纸案例
建成实景
别墅装修
定制设计
建房知识
当前位置:
网站首页
>
图纸案例
>
案例详情
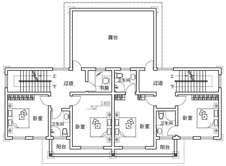
图纸编号:6529
湖北孝感王家欧式双拼别墅自建房设计图纸喜天下建筑设计
开间:19.8米
进深:11.9米
房屋风格:欧式
成交量:
81
我要图纸
我要施工
服务承诺:国家标准设计 专业审图 注册设计师 资深团队
盖房分类
查看所有图纸
一层别墅
二层别墅
三层别墅
四层及以上
双拼别墅
架空层/商铺
建成实景
别墅装修
定制设计
最新上架
兄弟一起建对称双拼欧式风三层宜居别墅设计浙江喜天下建筑设计有限公司
13人已买
四川绵阳朱家欧式别墅自建房设计图纸喜天下建筑设计
60人已买
广东广州云家欧式风格别墅自建房设计图纸喜天下建筑设计
32人已买
湖北孝感陶家新中式风格别墅自建房设计图纸喜天下建筑设计
25人已买
江西南昌朱家新中式风格别墅自建房设计图纸喜天下建筑设计
32人已买
湖南湘潭李家中式风格别墅自建房设计图纸喜天下建筑设计
77人已买
湖北黄石雷家新中式风格别墅自建房设计图纸喜天下建筑设计
50人已买
新中式二层半经典造型风格自建房屋房子设计
90人已买
广东河源袁家现代别墅自建房设计图纸喜天下建筑设计
38人已买
广东韶关朱家欧式风格别墅自建房设计图纸喜天下建筑设计
38人已买
山西新绛陆家欧式别墅设计喜天下别墅设计案例
75人已买
福建莆田唐家现代别墅
1人已买
湖南岳阳汪家现代风格别墅自建房设计图纸喜天下建筑设计
2人已买
湖北襄阳方家欧式别墅设计喜天下别墅设计案例
49人已买
湖南祁东周家欧式风格别墅自建房设计图纸喜天下建筑设计
77人已买
温州柳市刘家新中式4层别墅设计喜天下别墅设计图纸
77人已买
湖南张家界熊家新中式风格别墅自建房设计图纸喜天下建筑设计
90人已买
湖南常德林家欧式风格别墅自建房设计图纸喜天下建筑设计
68人已买
二层常规平顶自建房设计造价省图纸之家喜天下建筑设计
12人已买
家湖北鄂州林家欧式别墅自建房设计图纸喜天下建筑设计
20人已买
经典欧式农村自建房小别墅设计图纸案例图纸之家易盖房建房说设计喜天下建筑设计
28人已买
经典爆款新中式二层小别墅设计案例图纸自建房屋房子设计图纸喜天下建筑
98人已买
自建房子别墅案例模具设计喜天下建筑设计湖南衡南
36人已买
海南省海口市欧式风格住宅设计建筑图纸易盖房建房说喜天下
67人已买
上一篇:河南郑州董家中式别墅
下一篇:河北廊坊姚家新中式风格别墅自建房设计图纸喜天下建筑设计
看了又看
带地下室四层经典新中式风格别墅案例图纸房屋设计易盖房建房说住宅公园喜天下建筑设计
海南万宁于家新中式风格别墅自建房设计图纸喜天下建筑设计
中式三合院四合院风格带天井多房间造价低广东惠州客户设计
广西柳州周家欧式别墅自建房设计图纸喜天下建筑设计
湖北咸宁姚家新中式风格别墅自建房设计图纸喜天下建筑设计
北京昌平新中式别墅设计
新中式含架空层停车场自建房庭院设计EPS成品线条外装
二层欧式农村房屋设计图带水电施工图全套定制设计案例效果图大全
经典户型
安徽安庆林家中式风格别墅自建房设计图纸喜天下建筑设计
图纸编号672镜像新中式广东佛山地区自建房屋设计
江苏扬州楚家欧式3层别墅设计喜天下别墅设计案例
北京怀柔林家欧式风格双拼别墅自建房设计图纸喜天下建筑设计
河南郑州徐家欧式4层别墅设计喜天下别墅设计案例
江苏泰兴王家中式风格别墅自建房设计图纸喜天下建筑设计
农村3层别墅设计图纸别墅图纸超市喜天下建筑设计喜盖房别墅图纸设计图
安徽安庆卢家法式别墅
我要图纸
加设计师微信 18858855226
专业的设计团队,最实惠的价格,我们为您量身定制,专属于您的房子设计。
我要施工
加设计师微信 18858855226
专业的设计团队,最实惠的价格,我们为您量身定制,专属于您的房子设计。