咨询电话/微信同号 18858855226
网站首页
图纸案例
建成实景
别墅装修
定制设计
建房知识
当前位置:
网站首页
>
图纸案例
>
案例详情
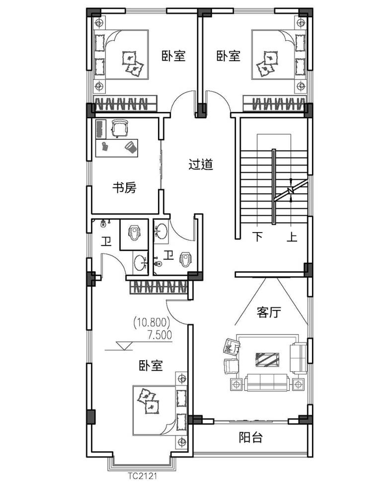
图纸编号:6532
广东吴川李家现代风格别墅自建房设计图纸喜天下建筑设计
开间:7.98米
进深:14.8米
房屋风格:现代
成交量:
33
我要图纸
我要施工
服务承诺:国家标准设计 专业审图 注册设计师 资深团队
盖房分类
查看所有图纸
一层别墅
二层别墅
三层别墅
四层及以上
双拼别墅
架空层/商铺
建成实景
别墅装修
定制设计
最新上架
重庆渝北谢家新中式风格别墅自建房设计图纸喜天下建筑设计
12人已买
北京丰台陈家欧式4层别墅设计喜天下别墅设计图纸
87人已买
重庆巫山徐家二层欧式带车库农村建筑别墅设计图纸
22人已买
浙江舟山陈家新中式风格别墅自建房设计图纸喜天下建筑设计
16人已买
河南商丘蔡家欧式双拼架空5层别墅设计喜天下别墅设计案例
96人已买
北京顺义闻家现代风格别墅自建房设计图纸喜天下建筑设计
10人已买
浙江杭州林家新中式风格别墅自建房设计图纸喜天下建筑设计
5人已买
河南焦作许家中式风格别墅自建房设计图纸喜天下建筑设计
62人已买
镜像左右对调别墅图经典爆款三层欧式自建房屋设计施工图纸
87人已买
现代风格双拼自建房设计案例150平米占地面积
12人已买
山西阳泉鞠家欧式别墅设计喜天下别墅设计图纸
77人已买
浙江宁波韩家欧式别墅自建房设计图纸喜天下建筑设计
53人已买
湖南长沙朱家新中式风格别墅自建房设计图纸喜天下建筑设计
12人已买
江西吉安高家欧式风格别墅自建房设计图纸喜天下建筑设计
55人已买
江苏如皋杨家欧式风格别墅自建房设计图纸喜天下建筑设计
22人已买
二层半现代风格带车库农村小别墅设计施工图纸喜天下建筑设计房子设计图纸施工图纸
57人已买
广东茂名黄家欧式一层双拼对称别墅
21人已买
浙江高档现代别墅民宿设计图纸案例
77人已买
河北廊坊姚家新中式风格别墅自建房设计图纸喜天下建筑设计
59人已买
福建吴家欧式风格别墅自建房设计图纸喜天下建筑设计
42人已买
带大露台欧式新中式农村小别墅自建房设计图纸案例土黄色真石漆
66人已买
湖南娄底宋家欧式风格别墅自建房设计图纸喜天下建筑设计
21人已买
中式三合院四合院风格带天井多房间造价低广东惠州客户设计
11人已买
浙江兰溪方家新中式风格别墅自建房设计图纸喜天下建筑设计
50人已买
上一篇:自建房子别墅案例模具设计喜天下建筑设计湖南衡南
下一篇:三层欧式别墅自建房屋设计案例喜天下建筑喜盖房
看了又看
山西晋城古家新中式别墅设计喜天下别墅设计图纸
重庆潼南郑家中式别墅设计喜天下别墅设计图纸
湖北黄石阚家欧式别墅自建房设计图纸喜天下建筑设计
河北廊坊刘家欧式别墅自建房设计图纸喜天下建筑设计
带柴火房附楼主楼三层经典大露台欧式别墅设计14米X11米造价33万139平米小别墅设计
欧式三层乡村自建房设计效果施工全套图纸
湖南株洲陈家欧式风格别墅自建房设计图纸喜天下建筑设计
北京昌平王家新中式风格别墅自建房设计图纸喜天下建筑设计
经典户型
福建双峰邓家新中式风格别墅自建房设计图纸喜天下建筑设计
经典造型带农村灶台主房偏房带走廊阳台农村欧式别墅设计
二层现代风格农村精致建筑住宅房屋设计图纸
湖南株洲陈家新中式自建房图纸设计案例喜天下别墅设计
江西萍乡黄家欧式别墅自建房设计图纸喜天下建筑设计
农村3层别墅设计图纸别墅图纸超市喜天下建筑设计喜盖房别墅图纸设计图
福建明家三兄弟双拼三拼联排排屋自建别墅设计案例图纸大全
三层农村自建房屋别墅设计欧式经典户型
我要图纸
加设计师微信 18858855226
专业的设计团队,最实惠的价格,我们为您量身定制,专属于您的房子设计。
我要施工
加设计师微信 18858855226
专业的设计团队,最实惠的价格,我们为您量身定制,专属于您的房子设计。